SW SUNNYBREEZE ROADARCADIA, FL 34269
Due to the health concerns created by Coronavirus we are offering personal 1-1 online video walkthough tours where possible.




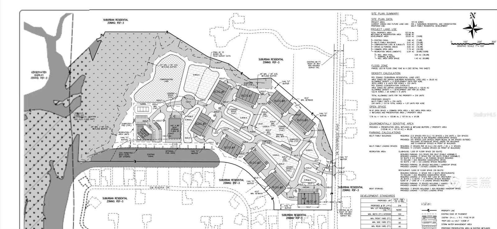
157± ACRES ON THE PEACE RIVER – DEVELOPMENT OPPORTUNITY *Paradise Island* An exceptional opportunity to acquire 157± acres of unspoiled Old Florida beauty along the scenic Peace River. This rare offering combines natural waterfront charm with significant development potential, making it ideal for visionary builders, investors, or those seeking a legacy property. Approximately 27± acres of high and dry land provide a strong foundation for development, while the remaining acreage offers a stunning backdrop of native landscape, perfect for preserving natural aesthetics or creating a one-of-a-kind eco-focused project. Zoned ROI and A-5, the property allows for a wide range of possibilities including a private riverfront estate, boutique eco-resort, residential development, or mixed-use concept. Developers will appreciate the groundwork already in place—previous approvals for up to 216 units offer a valuable head start for those looking to move forward with a residential project (documentation available upon request). Additionally, there is potential for up to 23 private docks, providing direct boating access to the river and out to the Gulf, a highly desirable feature in Southwest Florida waterfront communities. Infrastructure is within reach, with water and sewer nearby, enhancing the feasibility and cost-efficiency of future development. Strategically located with convenient access to Arcadia, Port Charlotte, and Punta Gorda, the property also offers easy connectivity to regional travel hubs including Punta Gorda Airport and Southwest Florida International Airport. Whether you envision a luxury riverfront community, a serene eco-retreat, or a private estate surrounded by nature, this property delivers the scale, location, and flexibility to bring your vision to life.
| a month ago | Listing updated with changes from the MLS® | |
| a month ago | Listing first seen on site |
Listing information is provided by Participants of the Stellar MLS. IDX information is provided exclusively for personal, non-commercial use, and may not be used for any purpose other than to identify prospective properties consumers may be interested in purchasing. Information is deemed reliable but not guaranteed. Properties displayed may be listed or sold by various participants in the MLS Copyright 2026, Stellar MLS.
Last checked: 2026-05-20 08:16 PM EDT



Did you know? You can invite friends and family to your search. They can join your search, rate and discuss listings with you.